Project of a cottage with an attic with a garage for one car

149 m² total area / 1604 ft² 1 floor 4 bedrooms 2 bathrooms
Project of a cottage with an attic with a garage for one car
Click to view

Description

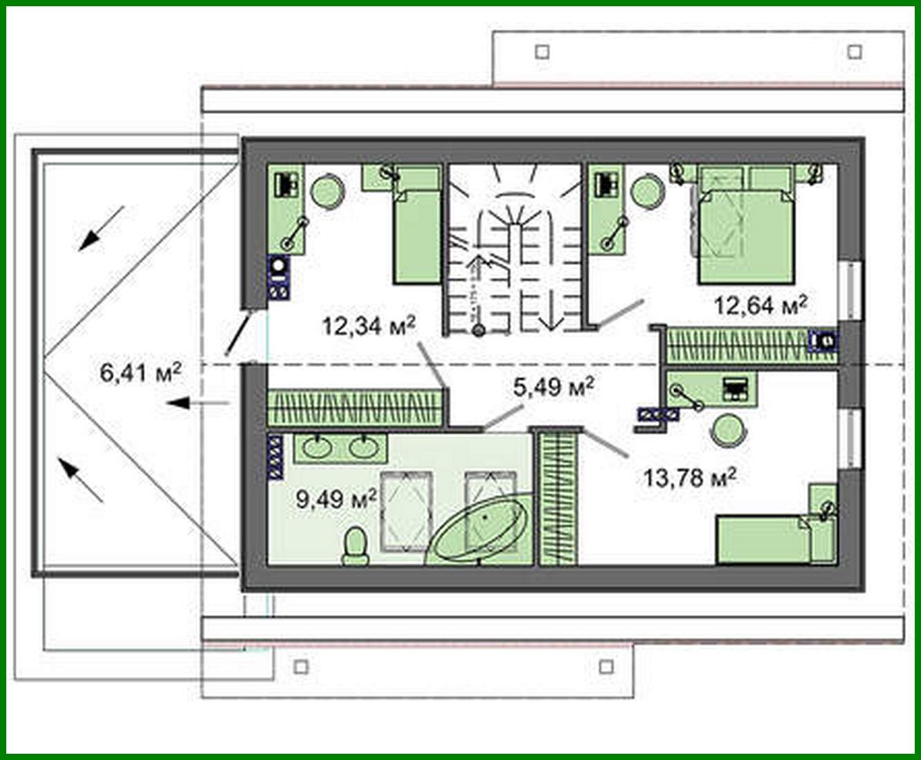
366. Project of a cottage with an attic with a garage for one car Number of floors: 2 Total area: 148.81 m2 Living Area: 68.72 m2 House height: 7.55 m Ceiling Height: 2.80 m Roof Angle: 35 ° Roof area: 123.20 m2 Cubature: 344.00 m3 Number of bedrooms: 4 Number of bathrooms: 2 Garage: Garage for one car Minimum plot size (length): 17.20 m Minimum plot size (width): 22.20 m Built-up area: 154.1 m2 Materials: Walls: aerated concrete blocks Overlap: monolithic overlap Roofing: metal tile, ceramic tile, bitumen Foundation: monolithic tape

Interested in this plan?

Contact us to get full blueprints, construction estimate, or adapt this plan to your plot and needs.

Request more information

Visualization gallery