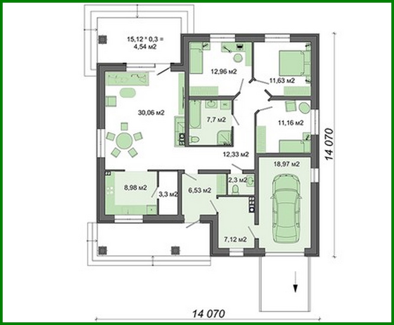
One-story house with a garage and three bedrooms

138 m² total area / 1485 ft² 1 floor 3 bedrooms 2 bathrooms
One-story house with a garage and three bedrooms
Click to view

Description

One-story house with a garage and three bedrooms Number of floors: 1 Total area: 137.58 m2 Living Area: 65.81 m2 House height: 7.99 m Ceiling Height: 2.80 m Roof Angle: 30 ° Roof area: 280.00 m2 Number of bedrooms: 3 Number of bathrooms: 2 Garage: Garage for one car Minimum plot size (length): 22.00 m Minimum plot size (width): 22.00 m Materials: Walls: aerated concrete, ceramic blocks Ceiling: on wooden beams Roofing: ceramic tile, metal tile, cement-sand tile Foundation: monolithic tape

Interested in this plan?

Contact us to get full blueprints, construction estimate, or adapt this plan to your plot and needs.

Request more information

Visualization gallery