A project of a small neat cottage with a garage and an attic
Description
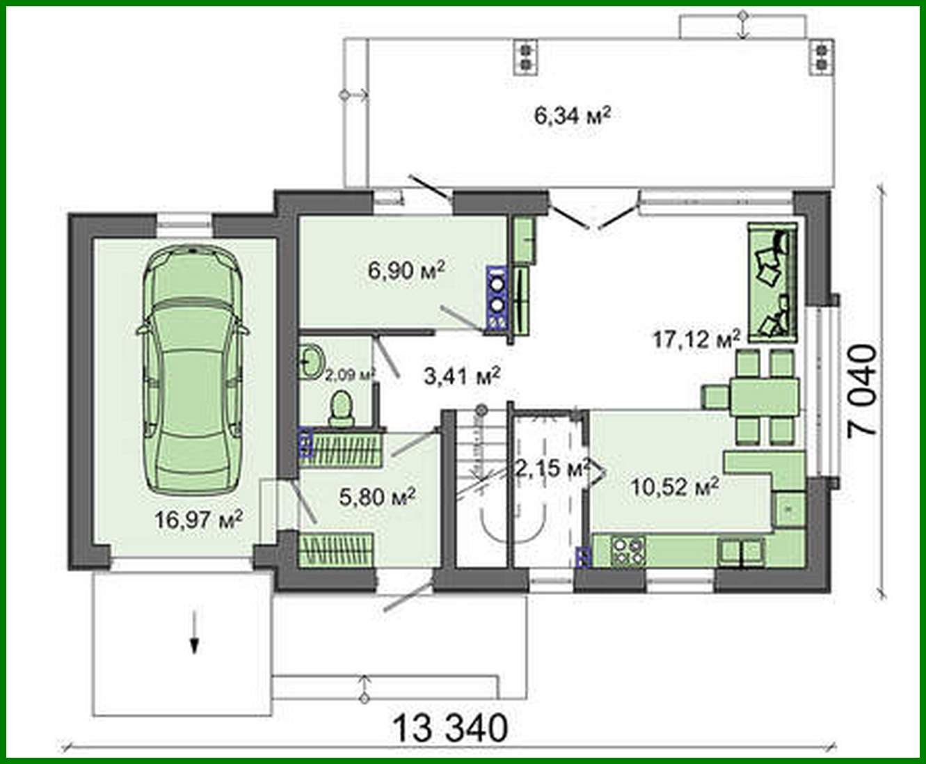
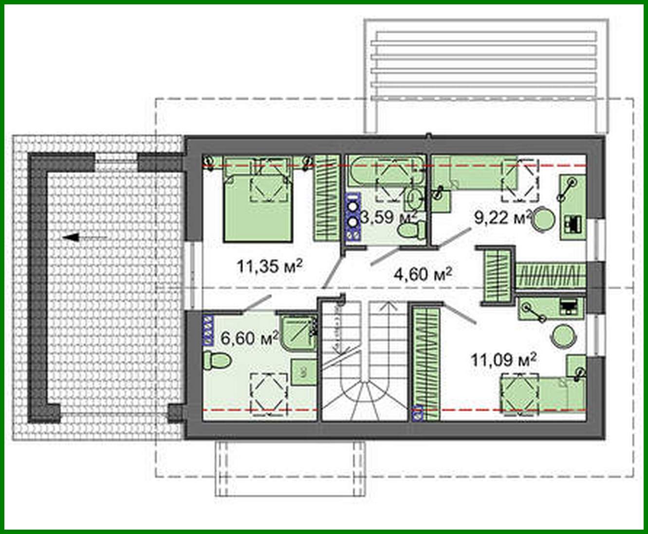
A project of a small neat cottage with a garage and an attic Number of floors: 2 Total area: 117.75 m2 Living Area: 48.78 m2 House height: 7.81 m Ceiling Height: 2.80 m Roof Angle: 40/22 ° Roof area: 124.00 m2 Cubic capacity: 301.00 m3 Number of bedrooms: 3 Number of bathrooms: 3 Garage: Garage for one car Minimum plot size (length): 20.44 m Minimum plot size (width): 15.14 m Built-up area: 133.03 m2 Materials: Walls: aerated concrete blocks Overlap: monolithic overlap Roofing: metal tile, ceramic tile, bitumen Foundation: monolithic tape
Interested in this plan?
Contact us to get full blueprints, construction estimate, or adapt this plan to your plot and needs.
Request more informationVisualization gallery