The project of a modern comfortable estate with a bathhouse on the ground floor
Description
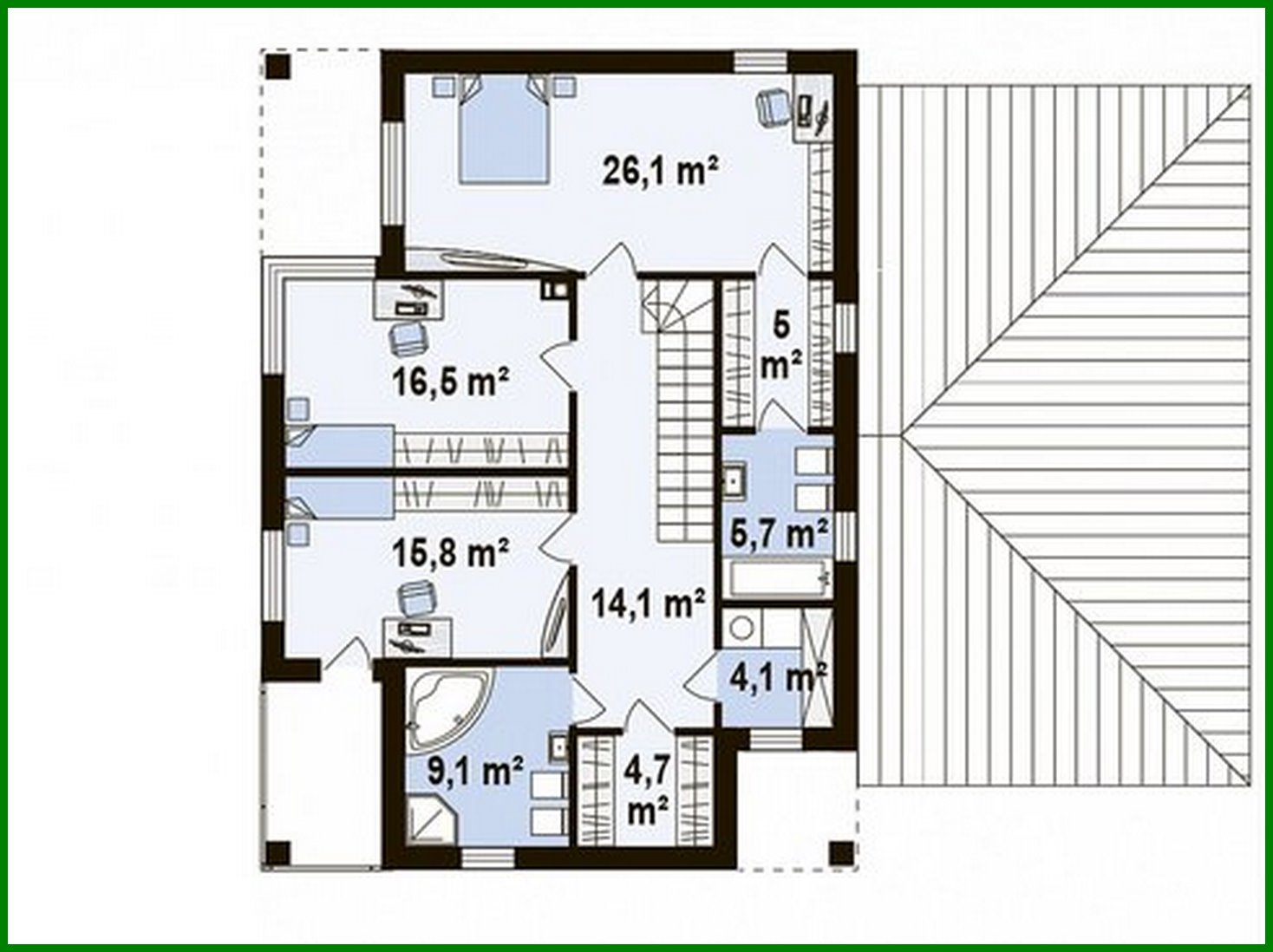
The project of a modern comfortable estate with a bathhouse on the ground floor Number of floors: 2 Total area: 281.88 m2 Living Area: 119.22 m2 House height: 8.91 m Ceiling Height: 2.80 m Roof Angle: 25/14 ° Roof area: 301.00 m2 Cubic capacity: 711.00 m3 Number of bedrooms: 4 Number of bathrooms: 3 Garage: Two-car garage Minimum plot size (length): 22.00 m Minimum plot size (width): 23.00 m Built-up area: 210 m2 Materials: Walls: aerated concrete, ceramic blocks Overlap: monolithic overlap Roofing: metal tile, ceramic tile, bitumen Foundation: monolithic tape
Interested in this plan?
Contact us to get full blueprints, construction estimate, or adapt this plan to your plot and needs.
Request more informationVisualization gallery