Project version with a modern facade

196 m² total area / 2110 ft² 1 floor 5 bedrooms 3 bathrooms
Project version with a modern facade
Click to view

Description

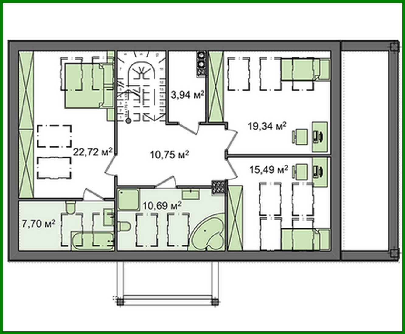
Project version with a modern facade Number of floors: 2 Total area: 196.19 m2 Living Area: 111.01 m2 House height: 7.09 m Ceiling Height: 2.80 m Roof Angle: 30 ° Roof area: 195.80 m2 Cubature: 468.00 m3 Number of bedrooms: 5 Number of bathrooms: 3 Minimum plot size (length): 16.00 m Minimum plot size (width): 23.00 m Built-up area: 176.15 m2 Materials: Walls: aerated concrete blocks Overlap: monolithic overlap Roofing: metal tile, ceramic tile, bitumen Foundation: monolithic tape

Interested in this plan?

Contact us to get full blueprints, construction estimate, or adapt this plan to your plot and needs.

Request more information

Visualization gallery