Spacious beautiful house with a cozy guest area

286 m² total area / 3078 ft² 2 floors 3 bedrooms 3 bathrooms
Spacious beautiful house with a cozy guest area
Click to view

Description

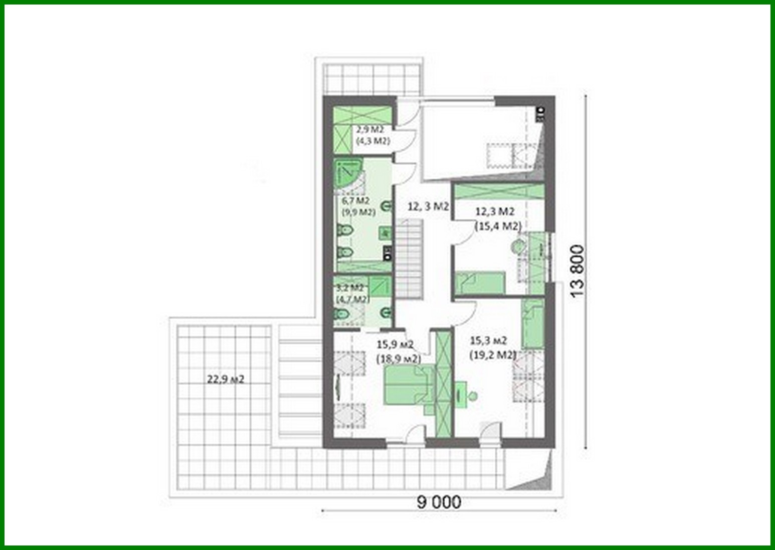
Spacious beautiful house with a cozy guest area Number of floors: 2 Total area: 285.64 m2 Living Area: 175.73 m2 House height: 8.20 m Ceiling Height: 2.80 m Roof Angle: 35 ° Roof area: 188.00 m2 Cubature: 960.00 m3 Number of bedrooms: 3 Number of bathrooms: 3 Garage: Garage for one car Minimum plot size (length): 20.00 m Minimum plot size (width): 22.00 m Built-up area: 146.13 m2 Materials: Walls: aerated concrete, ceramic blocks Overlap: monolithic overlap Roofing: rebate Foundation: monolithic tape

Interested in this plan?

Contact us to get full blueprints, construction estimate, or adapt this plan to your plot and needs.

Request more information

Visualization gallery