The project of a small country house with an attic

87 m² total area / 936 ft² 1 floor 2 bedrooms 2 bathrooms
The project of a small country house with an attic
Click to view

Description

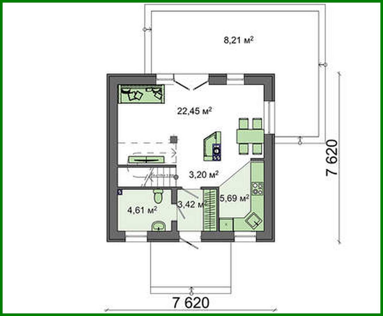
The project of a small country house with an attic Number of floors: 2 Total area: 87.35 m2 Living Area: 44.47 m2 House height: 7.92 m Ceiling Height: 2.80 m Roof Angle: 40 ° Roof area: 81.50 m2 Cubic capacity: 192.00 m3 Number of bedrooms: 2 Number of bathrooms: 2 Minimum plot size (length): 15.44 m Minimum plot size (width): 14.44 m Built-up area: 100.07 m2 Materials: Walls: aerated concrete blocks Overlap: monolithic overlap Roofing: metal tile, ceramic tile, bitumen Foundation: monolithic tape band

Interested in this plan?

Contact us to get full blueprints, construction estimate, or adapt this plan to your plot and needs.

Request more information

Visualization gallery