The project of a spacious cottage with a terrace above the garage

249 m² total area / 2680 ft² 1 floor 4 bedrooms 3 bathrooms
The project of a spacious cottage with a terrace above the garage
Click to view

Description

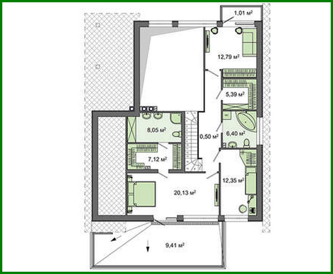
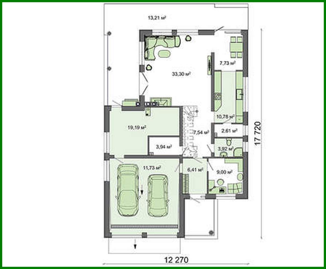
The project of a spacious cottage with a terrace above the garage Number of floors: 2 Total area: 248.90 m2 Living Area: 95.30 m2 House height: 8.74 m Ceiling Height: 2.80 m Roof Angle: 35 ° Roof area: 261.50 m2 Cubature: 596.90 m3 Number of bedrooms: 4 Number of bathrooms: 3 Garage: Two-car garage Minimum plot size (length): 25.88 m Minimum plot size (width): 19.58 m Built-up area: 236.13 m2 Materials: Walls: aerated concrete blocks Overlap: monolithic overlap Roofing: metal tile, ceramic tile, bitumen Foundation: monolithic slab

Interested in this plan?

Contact us to get full blueprints, construction estimate, or adapt this plan to your plot and needs.

Request more information

Visualization gallery