House project with attic and garage

224 m² total area / 2411 ft² 1 floor bedrooms
House project with attic and garage
Click to view

Description

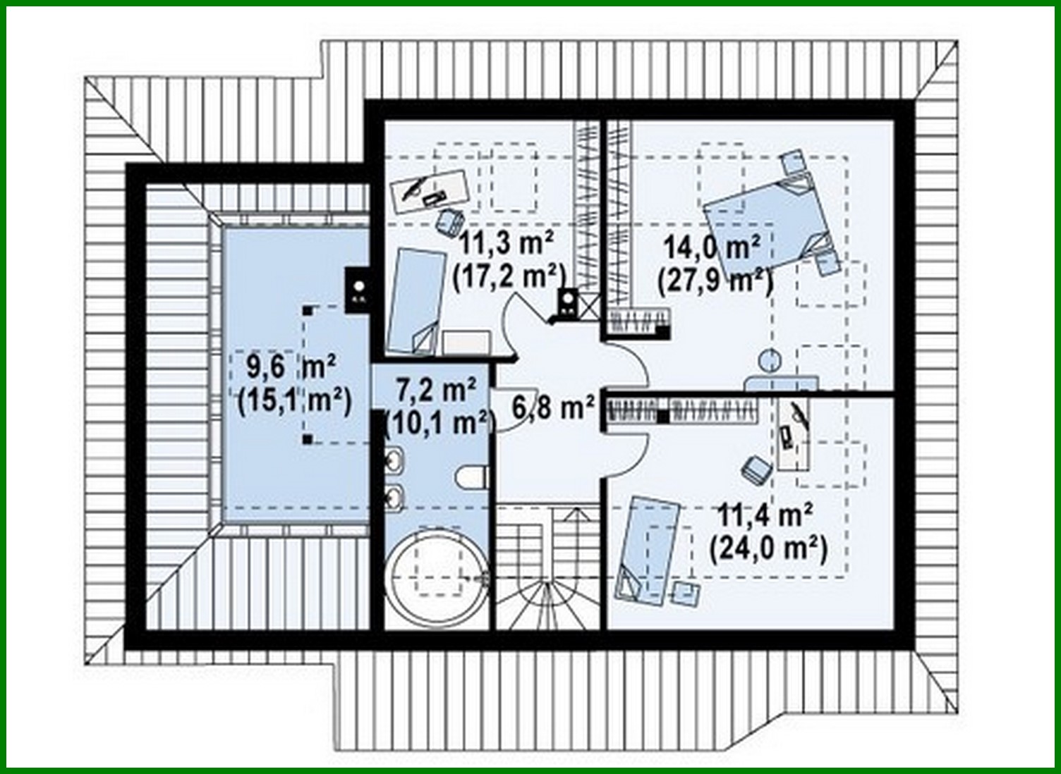
House project with attic and garage Number of floors: 2 Total area: 224.00 m2 Living Area: 157.80 m2 House height: 7.40 m Ceiling Height: 2.80 m Roof Angle: 32 ° Roof area: 227.00 m2 Cubature: 529.00 m3 Garage: Garage for one car Minimum plot size (length): 21.89 m Minimum plot size (width): 16.39 m Materials: Walls: aerated concrete, ceramic blocks Overlap: monolithic overlap Roofing: metal tile, ceramic tile, bitumen Foundation: monolithic tape

Interested in this plan?

Contact us to get full blueprints, construction estimate, or adapt this plan to your plot and needs.

Request more information

Visualization gallery