Compact house 8 * 9 of the European style

125 m² total area / 1345 ft² 2 floors 3 bedrooms 2 bathrooms
Compact house 8 * 9 of the European style
Click to view

Description

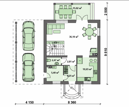
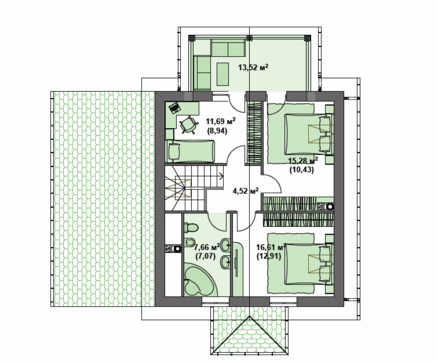
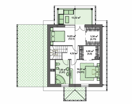
Compact house 8 * 9 of the European style Number of floors: 2 Total area: 125.00 m2 Living Area: 68.00 m2 House height: 7.80 m Ceiling Height: 2.80 m Roof Angle: 35 ° Roof area: 184.00 m2 Number of bedrooms: 3 Number of bathrooms: 2 Minimum plot size (length): 19.00 m Minimum plot size (width): 18.00 m Materials: Walls: aerated concrete, ceramic blocks Overlap: monolithic overlap Roofing: ceramic tile, metal tile, cement-sand tile Foundation: monolithic tape band

Interested in this plan?

Contact us to get full blueprints, construction estimate, or adapt this plan to your plot and needs.

Request more information

Visualization gallery