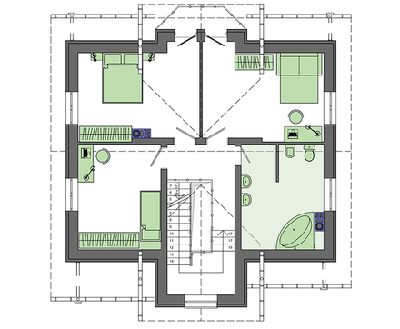
The project of a cozy house 11 x 11

145 m² total area / 1561 ft² 2 floors 4 bedrooms 2 bathrooms
The project of a cozy house 11 x 11
Click to view

Description

The project of a cozy house 11 x 11 Number of floors: 2 Total area: 144.84 m2 Living Area: 84.51 m2 House height: 8.46 m Ceiling Height: 2.80 m Roof Angle: 40 ° Roof area: 188.00 m2 Cubature: 591.00 m3 Number of bedrooms: 4 Number of bathrooms: 2 Minimum plot size (length): 18.80 m Minimum plot size (width): 19.40 m Built-up area: 120.83 m2 Materials: Walls: aerated concrete blocks Overlap: monolithic overlap Roofing: metal tile, ceramic tile, bitumen Foundation: monolithic tape

Interested in this plan?

Contact us to get full blueprints, construction estimate, or adapt this plan to your plot and needs.

Request more information

Visualization gallery