Design of a modern stylish house

299 m² total area / 3218 ft² 2 floors 4 bedrooms 3 bathrooms
Design of a modern stylish house
Click to view

Description

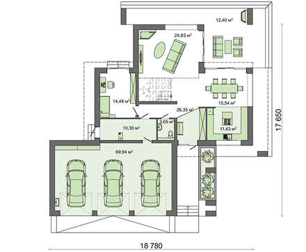
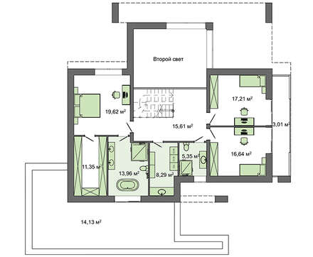
Design of a modern stylish house Number of floors: 2 Total area: 299.34 m2 Living Area: 92.78 m2 House height: 7.90 m Ceiling Height: 2.80 m Roof Angle: 1.5 ° Roof area: 214.08 m2 Cubic capacity: 1413.80 m3 Number of bedrooms: 4 Number of bathrooms: 3 Garage: Garage for three cars Minimum plot size (length): 27.00 m Minimum plot size (width): 26.50 m Built-up area: 231.84 m2 Materials: Walls: aerated concrete, ceramic blocks Overlap: monolithic overlap Roofing: PVC membrane Foundation: monolithic tape

Interested in this plan?

Contact us to get full blueprints, construction estimate, or adapt this plan to your plot and needs.

Request more information

Visualization gallery