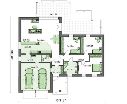
The project of a one-story cottage with a frontal garage for two cars

196 m² total area / 2110 ft² 1 floor 3 bedrooms 2 bathrooms
The project of a one-story cottage with a frontal garage for two cars
Click to view

Description

The project of a one-story cottage with a frontal garage for two cars Number of floors: 1 Total area: 196.23 m2 Living Area: 91.94 m2 House height: 6.24 m Ceiling Height: 2.80 m Roof Angle: 30 ° Roof area: 331.00 m2 Cubic capacity: 301.00 m3 Number of bedrooms: 3 Number of bathrooms: 2 Garage: Two-car garage Minimum plot size (length): 23.00 m Minimum plot size (width): 24.00 m Built-up area: 291.9 m2 Materials: Walls: aerated concrete blocks Overlap: floor slabs Roofing: metal tile, ceramic tile, bitumen Foundation: monolithic tape

Interested in this plan?

Contact us to get full blueprints, construction estimate, or adapt this plan to your plot and needs.

Request more information

Visualization gallery