Compact two-story cottage project

149 m² total area / 1604 ft² 2 floors 4 bedrooms 2 bathrooms
Compact two-story cottage project
Click to view

Description

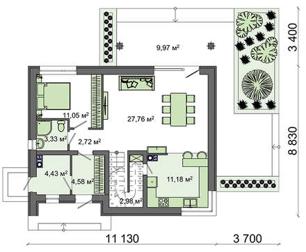
Compact two-story cottage project Number of floors: 2 Total area: 148.79 m2 Living Area: 83.06 m2 House height: 8.43 m Ceiling Height: 2.80 m Roof Angle: 40/22 ° Roof area: 124.00 m2 Number of bedrooms: 4 Number of bathrooms: 2 Minimum plot size (length): 18.50 m Minimum plot size (width): 17.00 m Materials: Walls: aerated concrete, ceramic blocks Overlap: monolithic overlap Roofing: metal tile, ceramic tile, bitumen Foundation: monolithic tape

Interested in this plan?

Contact us to get full blueprints, construction estimate, or adapt this plan to your plot and needs.

Request more information

Visualization gallery