Chalet-style cottage project

283 m² total area / 3046 ft² 2 floors 4 bedrooms 3 bathrooms
Chalet-style cottage project
Click to view

Description

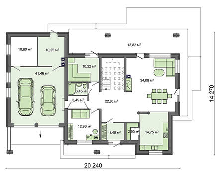
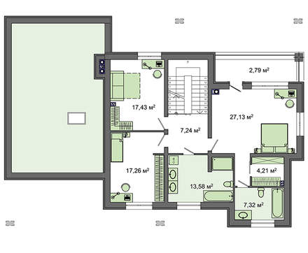
Chalet-style cottage project Number of floors: 2 Total area: 282.60 m2 Living Area: 108.86 m2 House height: 9.52 m Ceiling Height: 2.80 m Roof Angle: 22/16 ° Roof area: 397.00 m2 Number of bedrooms: 4 Number of bathrooms: 3 Garage: Two-car garage Minimum plot size (length): 29.00 m Minimum plot size (width): 19.50 m Built-up area: 337.53 m2 Materials: Walls: aerated concrete blocks Overlap: monolithic overlap Roofing: metal tile, ceramic tile, bitumen Foundation: monolithic tape band

Interested in this plan?

Contact us to get full blueprints, construction estimate, or adapt this plan to your plot and needs.

Request more information

Visualization gallery