The project of a four-story mansion

512 m² total area / 5511 ft² 4 floors 5 bedrooms 4 bathrooms
The project of a four-story mansion
Click to view

Description

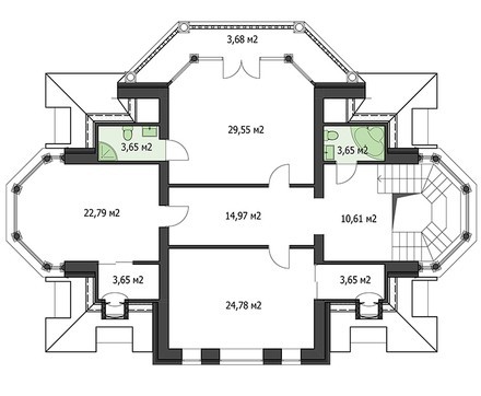
The project of a four-story mansion Number of floors: 4 Total area: 512.14 m2 Living Area: 268.42 m2 House height: 11.46 m Ceiling Height: 3.00 m Roof Angle: 15 ° Roof area: 241.00 m2 Number of bedrooms: 5 Number of bathrooms: 4 Minimum plot size (length): 27.50 m Minimum plot size (width): 22.50 m Built-up area: 259 m2 Ground floor area: 71.13 m2 Materials: Walls: ceramic blocks Overlap: monolithic overlap Roof: shingles Foundation: monolithic tape

Interested in this plan?

Contact us to get full blueprints, construction estimate, or adapt this plan to your plot and needs.

Request more information

Visualization gallery