Lovely house with balconies

129 m² total area / 1389 ft² 1 floor 3 bedrooms 3 bathrooms
Lovely house with balconies
Click to view

Description

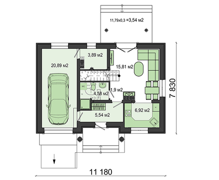
Lovely house with balconies Number of floors: 2 Total area: 128.64 m2 Living Area: 55.79 m2 House height: 8.01 m Ceiling Height: 2.80 m Roof Angle: 40 ° Roof area: 168.00 m2 Cubic capacity: 530.00 m3 Number of bedrooms: 3 Number of bathrooms: 3 Garage: Garage for one car Minimum plot size (length): 18.80 m Minimum plot size (width): 16.40 m Built-up area: 118.35 m2 Materials: Walls: aerated concrete blocks Overlap: monolithic overlap Roofing: metal tile, ceramic tile, bitumen Foundation: monolithic tape

Interested in this plan?

Contact us to get full blueprints, construction estimate, or adapt this plan to your plot and needs.

Request more information

Visualization gallery