Architectural project of a country house with a living room with a bay window

253 m² total area / 2723 ft² 2 floors 4 bedrooms 3 bathrooms
Architectural project of a country house with a living room with a bay window
Click to view

Description

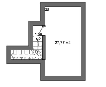
Architectural project of a country house with a living room with a bay window Number of floors: 2 Total area: 252.60 m2 Living Area: 115.80 m2 House height: 9.60 m Ceiling Height: 2.80 m Roof Angle: 42 ° Roof area: 250.10 m2 Cubic capacity: 760.00 m3 Number of bedrooms: 4 Number of bathrooms: 3 Garage: Garage for one car Minimum plot size (length): 23.10 m Minimum plot size (width): 19.20 m Built-up area: 139 m2 Materials: Walls: ceramic blocks Overlap: monolithic overlap Roofing: ceramic tiles Foundation: monolithic tape

Interested in this plan?

Contact us to get full blueprints, construction estimate, or adapt this plan to your plot and needs.

Request more information

Visualization gallery