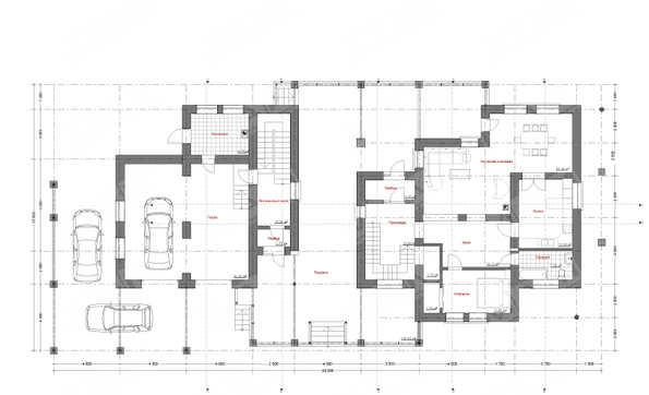
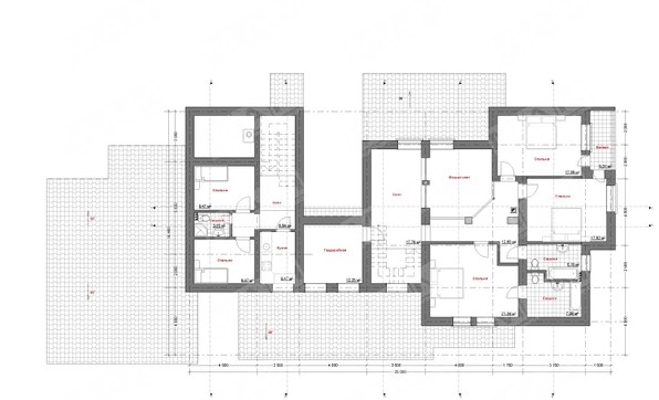
The architectural project of a huge country house

443 m² total area / 4768 ft² 2 floors 6 bedrooms 4 bathrooms
The architectural project of a huge country house
Click to view

Description

The architectural project of a huge country house Number of floors: 2 Total area: 443.10 m2 Ceiling Height: 2.80 m Number of bedrooms: 6 Number of bathrooms: 4 Garage: Two-car garage Minimum plot size (length): 20.00 m Minimum plot size (width): 37.00 m Materials: Walls: aerated concrete, ceramic blocks Overlap: monolithic overlap Roofing: metal tile, ceramic tile, bitumen Foundation: monolithic tape

Interested in this plan?

Contact us to get full blueprints, construction estimate, or adapt this plan to your plot and needs.

Request more information

Visualization gallery