Classic Cottage Project

140 m² total area / 1507 ft² 1 floor 3 bedrooms 2 bathrooms
Classic Cottage Project
Click to view

Description

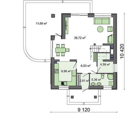
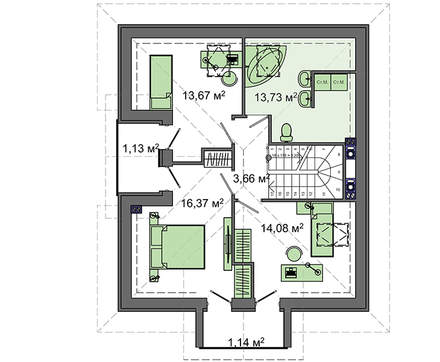
Classic Cottage Project Number of floors: 2 Total area: 140.35 m2 Living Area: 79.75 m2 House height: 7.77 m Ceiling Height: 2.80 m Roof Angle: 37 ° ° Roof area: 150.50 m2 Cubic capacity: 307.00 m3 Number of bedrooms: 3 Number of bathrooms: 2 Minimum plot size (length): 16.94 m Minimum plot size (width): 18.14 m Materials: Walls: aerated concrete blocks Overlap: monolithic overlap Roofing: ceramic tile, metal tile, cement-sand tile Foundation: monolithic tape

Interested in this plan?

Contact us to get full blueprints, construction estimate, or adapt this plan to your plot and needs.

Request more information

Visualization gallery