Luxurious apartment building in bright colors

249 m² total area / 2680 ft² 2 floors 4 bedrooms 2 bathrooms
Luxurious apartment building in bright colors
Click to view

Description

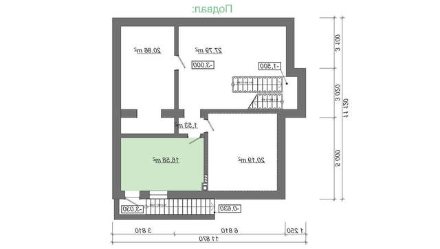
Luxurious apartment building in bright colors Number of floors: 3 Total area: 248.52 m2 Living Area: 84.50 m2 House height: 7.51 m Ceiling Height: 2.80 m Roof Angle: 30 ° Roof area: 160.00 m2 Number of bedrooms: 4 Number of bathrooms: 2 Minimum plot size (length): 16.00 m Minimum plot size (width): 16.00 m Built-up area: 138.8 m2 Ground floor area: 86.95 m2 Materials: Walls: ceramic blocks Overlap: monolithic overlap Roof: shingles Foundation: monolithic slab

Interested in this plan?

Contact us to get full blueprints, construction estimate, or adapt this plan to your plot and needs.

Request more information

Visualization gallery