Interesting cottage with a garage for 2 cars

202 m² total area / 2174 ft² 2 floors 4 bedrooms 2 bathrooms
Interesting cottage with a garage for 2 cars
Click to view

Description

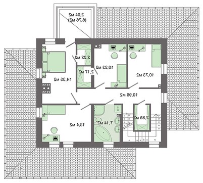
Interesting cottage with a garage for 2 cars Number of floors: 2 Total area: 201.85 m2 Living Area: 93.25 m2 House height: 8.40 m Ceiling Height: 2.80 m Roof Angle: 20 ° Roof area: 233.00 m2 Number of bedrooms: 4 Number of bathrooms: 2 Garage: Two-car garage Minimum plot size (length): 22.50 m Minimum plot size (width): 22.50 m Built-up area: 205.44 m2 Materials: Walls: aerated concrete, ceramic blocks Overlap: monolithic overlap Roofing: ceramic tile, metal tile, cement-sand tile Foundation: monolithic tape

Interested in this plan?

Contact us to get full blueprints, construction estimate, or adapt this plan to your plot and needs.

Request more information

Visualization gallery