Modern residential cottage with an attic

170 m² total area / 1830 ft² 1 floor 3 bedrooms 2 bathrooms
Modern residential cottage with an attic
Click to view

Description

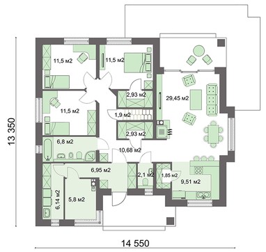
Modern residential cottage with an attic Number of floors: 1 Total area: 169.59 m2 Living Area: 119.59 m2 House height: 8.13 m Ceiling Height: 2.80 m Roof Angle: 35 ° Cubature: 494.55 m3 Number of bedrooms: 3 Number of bathrooms: 2 Minimum plot size (length): 21.35 m Minimum plot size (width): 22.55 m Built-up area: 181.55 m2 Materials: Walls: aerated concrete, ceramic blocks Ceiling: on wooden beams Roofing: ceramic tile, metal tile, cement-sand tile Foundation: monolithic tape

Interested in this plan?

Contact us to get full blueprints, construction estimate, or adapt this plan to your plot and needs.

Request more information

Visualization gallery