Two-story house with balconies for a narrow plot

126 m² total area / 1356 ft² 1 floor 3 bedrooms 2 bathrooms
Two-story house with balconies for a narrow plot
Click to view

Description

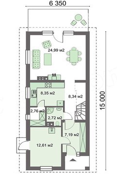
Two-story house with balconies for a narrow plot Number of floors: 2 Total area: 125.56 m2 Living Area: 103.84 m2 House height: 7.10 m Ceiling Height: 2.80 m Roof Angle: 35 ° Roof area: 142.00 m2 Cubic capacity: 535.99 m3 Number of bedrooms: 3 Number of bathrooms: 2 Minimum plot size (length): 23.00 m Minimum plot size (width): 14.35 m Built-up area: 94.08 m2 Materials: Walls: aerated concrete, ceramic blocks Overlap: monolithic overlap Roofing: rebate Foundation: monolithic tape

Interested in this plan?

Contact us to get full blueprints, construction estimate, or adapt this plan to your plot and needs.

Request more information

Visualization gallery