Barnhouse style cottage project with a spacious garage

305 m² total area / 3283 ft² 2 floors 3 bedrooms 2 bathrooms
Barnhouse style cottage project with a spacious garage
Click to view

Description

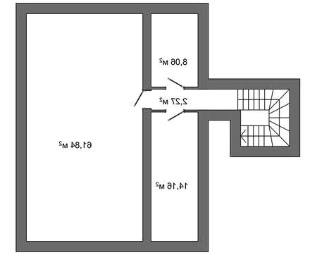
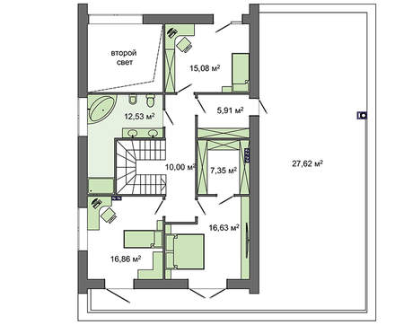
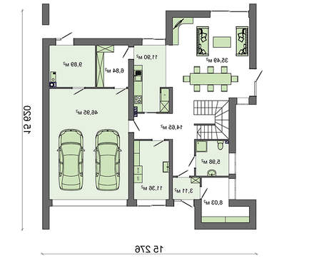
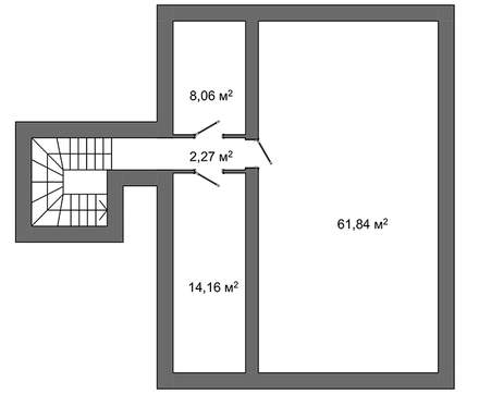
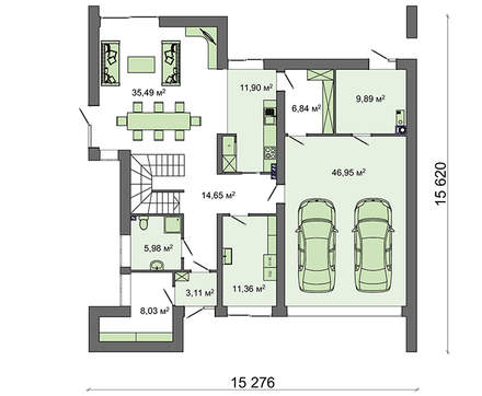
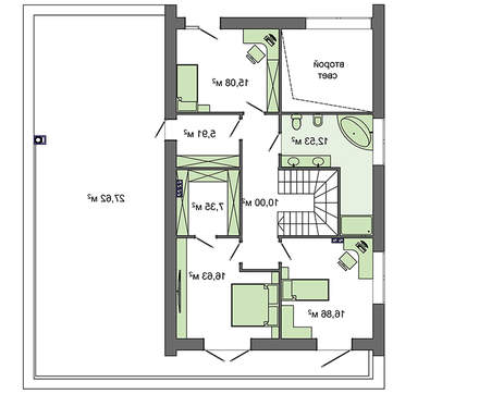
Barnhouse style cottage project with a spacious garage Number of floors: 3 Total area: 304.89 m2 Living Area: 84.06 m2 House height: 9.81 m Ceiling Height: 2.80 m Roof Angle: 40 ° Cubic capacity: 1788.78 m3 Number of bedrooms: 3 Number of bathrooms: 2 Garage: Two-car garage Minimum plot size (length): 24.00 m Minimum plot size (width): 24.00 m Built-up area: 191.97 m2 Ground floor area: 86.33 m2 Materials: Walls: aerated concrete, ceramic blocks Overlap: monolithic overlap Roofing: rebate Foundation: monolithic tape

Interested in this plan?

Contact us to get full blueprints, construction estimate, or adapt this plan to your plot and needs.

Request more information

Visualization gallery