Beautiful apartment building in chocolate shades

251 m² total area / 2702 ft² 1 floor 3 bedrooms 2 bathrooms
Beautiful apartment building in chocolate shades
Click to view

Description

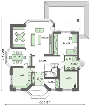
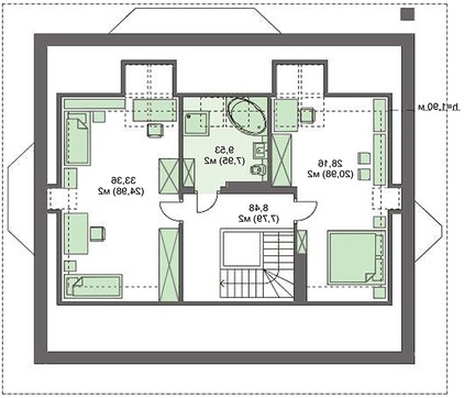
Beautiful apartment building in chocolate shades Number of floors: 2 Total area: 251.00 m2 Living Area: 184.59 m2 House height: 7.25 m Ceiling Height: 2.80 m Roof Angle: 45 ° Roof area: 270.00 m2 Cubature: 650.00 m3 Number of bedrooms: 3 Number of bathrooms: 2 Minimum plot size (length): 21.15 m Minimum plot size (width): 23.10 m Built-up area: 199.1 m2 Materials: Walls: aerated concrete, ceramic blocks Overlap: monolithic overlap Roofing: ceramic tile, metal tile, cement-sand tile Foundation: monolithic tape

Interested in this plan?

Contact us to get full blueprints, construction estimate, or adapt this plan to your plot and needs.

Request more information

Visualization gallery