The project of a classic two-story mansion

257 m² total area / 2766 ft² 2 floors 4 bedrooms 3 bathrooms
The project of a classic two-story mansion
Click to view

Description

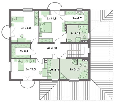
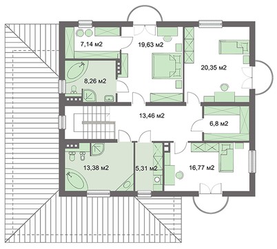
The project of a classic two-story mansion Number of floors: 2 Total area: 256.74 m2 Living Area: 153.54 m2 House height: 9.16 m Ceiling Height: 2.80 m Roof Angle: 20 ° Number of bedrooms: 4 Number of bathrooms: 3 Garage: Two-car garage Minimum plot size (length): 23.70 m Minimum plot size (width): 22.30 m Materials: Walls: aerated concrete, ceramic blocks Overlap: monolithic overlap Roofing: ceramic tile, metal tile, cement-sand tile Foundation: monolithic tape

Interested in this plan?

Contact us to get full blueprints, construction estimate, or adapt this plan to your plot and needs.

Request more information

Visualization gallery