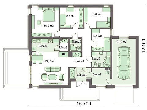
Stylish four-bedroom apartment building

133 m² total area / 1432 ft² 1 floor 4 bedrooms 2 bathrooms
Stylish four-bedroom apartment building
Click to view

Description

Stylish four-bedroom apartment building<br data-rich-text-line-break="true" />Number of floors: 1<br data-rich-text-line-break="true" />Total area: 132.90 m2<br data-rich-text-line-break="true" />Living Area: 105.70 m2<br data-rich-text-line-break="true" />House height: 7.20 m<br data-rich-text-line-break="true" />Ceiling Height: 2.80 m<br data-rich-text-line-break="true" />Roof Angle: 30 °<br data-rich-text-line-break="true" />Roof area: 239.50 m2<br data-rich-text-line-break="true" />Cubic capacity: 275.00 m3<br data-rich-text-line-break="true" />Number of bedrooms: 4<br data-rich-text-line-break="true" />Number of bathrooms: 2<br data-rich-text-line-break="true" />Garage: Garage for one car<br data-rich-text-line-break="true" />Minimum plot size (length): 20.10 m<br data-rich-text-line-break="true" />Minimum plot size (width): 23.70 m<br data-rich-text-line-break="true" />Built-up area: 173.5 m2<br data-rich-text-line-break="true" />Materials:<br data-rich-text-line-break="true" />Walls: aerated concrete, ceramic blocks<br data-rich-text-line-break="true" />Ceiling: on wooden beams<br data-rich-text-line-break="true" />Roofing: ceramic tile, metal tile, cement-sand tile<br data-rich-text-line-break="true" />Foundation: monolithic tape

Interested in this plan?

Contact us to get full blueprints, construction estimate, or adapt this plan to your plot and needs.

Request more information

Visualization gallery