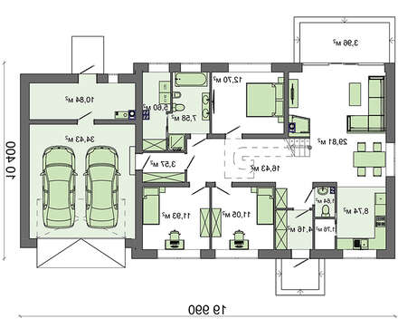
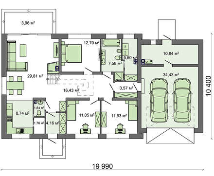
The project of a one-story cottage with a garage for two cars

235 m² total area / 2530 ft² 1 floor 3 bedrooms 2 bathrooms
The project of a one-story cottage with a garage for two cars
Click to view

Description

The project of a one-story cottage with a garage for two cars Number of floors: 1 Total area: 235.04 m2 Living Area: 65.49 m2 House height: 7.90 m Ceiling Height: 2.80 m Roof Angle: 32 ° Roof area: 308.00 m2 Cubature: 445.30 m3 Number of bedrooms: 3 Number of bathrooms: 2 Garage: Two-car garage Minimum plot size (length): 27.50 m Minimum plot size (width): 18.50 m Materials: Walls: aerated concrete, ceramic blocks Overlap: monolithic overlap Roofing: metal tile, ceramic tile, bitumen Foundation: monolithic tape

Interested in this plan?

Contact us to get full blueprints, construction estimate, or adapt this plan to your plot and needs.

Request more information

Visualization gallery