Modern two-story house in a classic style

227 m² total area / 2443 ft² 2 floors 3 bedrooms 3 bathrooms
Modern two-story house in a classic style
Click to view

Description

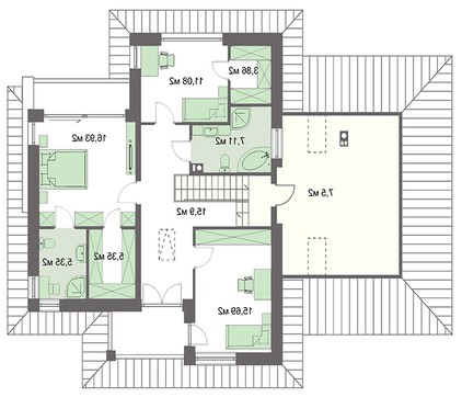
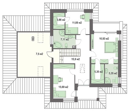
Modern two-story house in a classic style<br data-rich-text-line-break="true" />Number of floors: 2<br data-rich-text-line-break="true" />Total area: 226.98 m2<br data-rich-text-line-break="true" />Living Area: 142.95 m2<br data-rich-text-line-break="true" />House height: 8.49 m<br data-rich-text-line-break="true" />Ceiling Height: 2.80 m<br data-rich-text-line-break="true" />Roof Angle: 25 °<br data-rich-text-line-break="true" />Number of bedrooms: 3<br data-rich-text-line-break="true" />Number of bathrooms: 3<br data-rich-text-line-break="true" />Garage: Two-car garage<br data-rich-text-line-break="true" />Minimum plot size (length): 21.10 m<br data-rich-text-line-break="true" />Minimum plot size (width): 26.10 m<br data-rich-text-line-break="true" />Materials:<br data-rich-text-line-break="true" />Walls: aerated concrete, ceramic blocks<br data-rich-text-line-break="true" />Overlap: monolithic overlap<br data-rich-text-line-break="true" />Roofing: ceramic tile, metal tile, cement-sand tile<br data-rich-text-line-break="true" />Foundation: monolithic tape

Interested in this plan?

Contact us to get full blueprints, construction estimate, or adapt this plan to your plot and needs.

Request more information

Visualization gallery