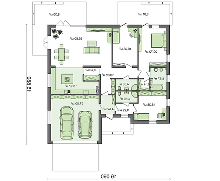
Single-storey house project with several bathrooms

201 m² total area / 2164 ft² 1 floor 3 bedrooms 3 bathrooms
Single-storey house project with several bathrooms
Click to view

Description

Single-storey house project with several bathrooms<br data-rich-text-line-break="true" />Number of floors: 1<br data-rich-text-line-break="true" />Total area: 201.43 m2<br data-rich-text-line-break="true" />Living Area: 92.03 m2<br data-rich-text-line-break="true" />House height: 6.76 m<br data-rich-text-line-break="true" />Ceiling Height: 2.80 m<br data-rich-text-line-break="true" />Roof Angle: 25 °<br data-rich-text-line-break="true" />Roof Area: 301.45 m2<br data-rich-text-line-break="true" />Cubature: 492.00 m3<br data-rich-text-line-break="true" />Number of bedrooms: 3<br data-rich-text-line-break="true" />Number of bathrooms: 3<br data-rich-text-line-break="true" />Garage: Two-car garage<br data-rich-text-line-break="true" />Minimum plot size (length): 24.00 m<br data-rich-text-line-break="true" />Minimum plot size (width): 23.00 m<br data-rich-text-line-break="true" />Built-up area: 283.18 m2<br data-rich-text-line-break="true" />Materials:<br data-rich-text-line-break="true" />Walls: aerated concrete blocks<br data-rich-text-line-break="true" />Ceiling: on wooden beams<br data-rich-text-line-break="true" />Roofing: metal tile, ceramic tile, bitumen<br data-rich-text-line-break="true" />Foundation: monolithic tape

Interested in this plan?

Contact us to get full blueprints, construction estimate, or adapt this plan to your plot and needs.

Request more information

Visualization gallery