Beautiful residential mansion with a spacious terrace

224 m² total area / 2411 ft² 2 floors 5 bedrooms 2 bathrooms
Beautiful residential mansion with a spacious terrace
Click to view

Description

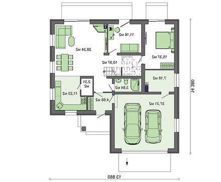
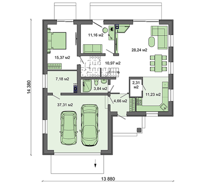
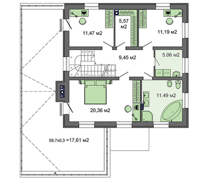
Beautiful residential mansion with a spacious terrace<br data-rich-text-line-break="true" />Number of floors: 2<br data-rich-text-line-break="true" />Total area: 224.47 m2<br data-rich-text-line-break="true" />Living Area: 97.79 m2<br data-rich-text-line-break="true" />House height: 9.77 m<br data-rich-text-line-break="true" />Ceiling Height: 2.80 m<br data-rich-text-line-break="true" />Roof Angle: 25 °<br data-rich-text-line-break="true" />Roof Area: 167.50 m2<br data-rich-text-line-break="true" />Number of bedrooms: 5<br data-rich-text-line-break="true" />Number of bathrooms: 2<br data-rich-text-line-break="true" />Garage: Two-car garage<br data-rich-text-line-break="true" />Minimum plot size (length): 22.30 m<br data-rich-text-line-break="true" />Minimum plot size (width): 25.70 m<br data-rich-text-line-break="true" />Built-up area: 209 m2<br data-rich-text-line-break="true" />Materials:<br data-rich-text-line-break="true" />Walls: aerated concrete blocks<br data-rich-text-line-break="true" />Overlap: monolithic overlap<br data-rich-text-line-break="true" />Roofing: ceramic tile, metal tile, cement-sand tile<br data-rich-text-line-break="true" />Foundation: monolithic tape

Interested in this plan?

Contact us to get full blueprints, construction estimate, or adapt this plan to your plot and needs.

Request more information

Visualization gallery