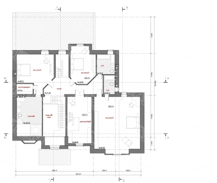
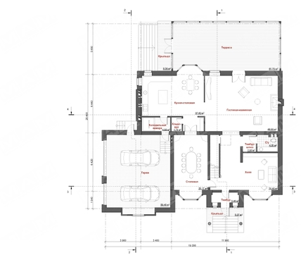
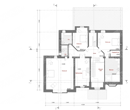
The project of a huge chic mansion

815 m² total area / 8773 ft² 3 floors 5 bedrooms 6 bathrooms
The project of a huge chic mansion
Click to view

Description

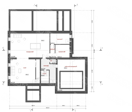
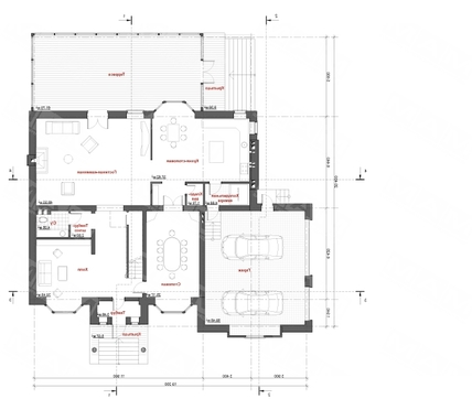
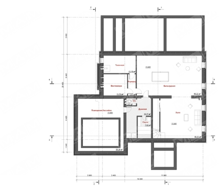
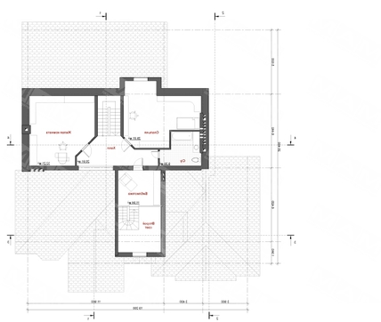
The project of a huge chic mansion<br data-rich-text-line-break="true" />Number of floors: 3<br data-rich-text-line-break="true" />Total area: 815.20 m2<br data-rich-text-line-break="true" />Ceiling Height: 2.80 m<br data-rich-text-line-break="true" />Number of bedrooms: 5<br data-rich-text-line-break="true" />Number of bathrooms: 6<br data-rich-text-line-break="true" />Garage: Two-car garage<br data-rich-text-line-break="true" />Minimum plot size (length): 25.00 m<br data-rich-text-line-break="true" />Minimum plot size (width): 24.00 m<br data-rich-text-line-break="true" />Materials:<br data-rich-text-line-break="true" />Walls: aerated concrete, ceramic blocks<br data-rich-text-line-break="true" />Overlap: monolithic overlap<br data-rich-text-line-break="true" />Roofing: metal tile, ceramic tile, bitumen<br data-rich-text-line-break="true" />Foundation: monolithic tape

Interested in this plan?

Contact us to get full blueprints, construction estimate, or adapt this plan to your plot and needs.

Request more information

Visualization gallery