The project of a bright house in the Mediterranean style

160 m² total area / 1722 ft² 2 floors 4 bedrooms 2 bathrooms
The project of a bright house in the Mediterranean style
Click to view

Description

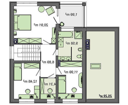
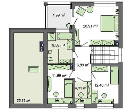
The project of a bright house in the Mediterranean style<br data-rich-text-line-break="true" />Number of floors: 2<br data-rich-text-line-break="true" />Total area: 160.15 m2<br data-rich-text-line-break="true" />Living Area: 81.59 m2<br data-rich-text-line-break="true" />House height: 8.96 m<br data-rich-text-line-break="true" />Ceiling Height: 2.80 m<br data-rich-text-line-break="true" />Roof Angle: 25 °<br data-rich-text-line-break="true" />Roof area: 205.00 m2<br data-rich-text-line-break="true" />Number of bedrooms: 4<br data-rich-text-line-break="true" />Number of bathrooms: 2<br data-rich-text-line-break="true" />Garage: Garage for one car<br data-rich-text-line-break="true" />Minimum plot size (length): 17.00 m<br data-rich-text-line-break="true" />Minimum plot size (width): 16.00 m<br data-rich-text-line-break="true" />Built-up area: 156.9 m2<br data-rich-text-line-break="true" />Materials:<br data-rich-text-line-break="true" />Walls: aerated concrete blocks<br data-rich-text-line-break="true" />Overlap: monolithic overlap<br data-rich-text-line-break="true" />Roof: shingles<br data-rich-text-line-break="true" />Foundation: monolithic slab

Interested in this plan?

Contact us to get full blueprints, construction estimate, or adapt this plan to your plot and needs.

Request more information

Visualization gallery