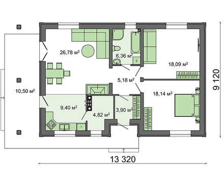
Compact house project with terrace

103 m² total area / 1109 ft² 1 floor 2 bedrooms 1 bathroom
Compact house project with terrace
Click to view

Description

Compact house project with terrace Number of floors: 1 Total area: 103.17 m2 Living Area: 63.01 m2 House height: 6.15 m Ceiling Height: 2.80 m Roof Angle: 30 ° Roof area: 213.50 m2 Cubic capacity: 264.00 m3 Number of bedrooms: 2 Number of bathrooms: 1 Minimum plot size (length): 20.00 m Minimum plot size (width): 23.50 m Built-up area: 159.56 m2 Materials: Walls: aerated concrete blocks Ceiling: on wooden beams Roofing: metal tile, ceramic tile, bitumen Foundation: monolithic tape

Interested in this plan?

Contact us to get full blueprints, construction estimate, or adapt this plan to your plot and needs.

Request more information

Visualization gallery