The project of a two-story house with panoramic glazing

130 m² total area / 1399 ft² 2 floors 3 bedrooms 3 bathrooms
The project of a two-story house with panoramic glazing
Click to view

Description

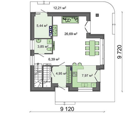
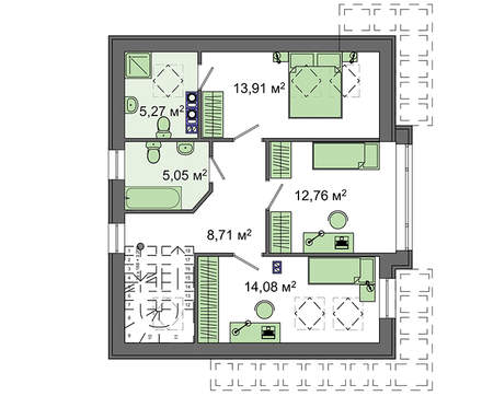
The project of a two-story house with panoramic glazing<br data-rich-text-line-break="true" />Number of floors: 2<br data-rich-text-line-break="true" />Total area: 129.87 m2<br data-rich-text-line-break="true" />Living Area: 67.44 m2<br data-rich-text-line-break="true" />House height: 9.01 m<br data-rich-text-line-break="true" />Ceiling Height: 2.80 m<br data-rich-text-line-break="true" />Roof Angle: 34 °<br data-rich-text-line-break="true" />Roof Area: 134.50 m2<br data-rich-text-line-break="true" />Cubic capacity: 366.00 m3<br data-rich-text-line-break="true" />Number of bedrooms: 3<br data-rich-text-line-break="true" />Number of bathrooms: 3<br data-rich-text-line-break="true" />Minimum plot size (length): 16.00 m<br data-rich-text-line-break="true" />Minimum plot size (width): 17.00 m<br data-rich-text-line-break="true" />Built-up area: 127.7 m2<br data-rich-text-line-break="true" />Materials:<br data-rich-text-line-break="true" />Walls: aerated concrete<br data-rich-text-line-break="true" />Overlap: monolithic overlap<br data-rich-text-line-break="true" />Roofing: metal tile, ceramic tile, bitumen<br data-rich-text-line-break="true" />Foundation: monolithic tape

Interested in this plan?

Contact us to get full blueprints, construction estimate, or adapt this plan to your plot and needs.

Request more information

Visualization gallery