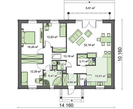
Single-storey house project without internal load-bearing walls

123 m² total area / 1324 ft² 1 floor 3 bedrooms 2 bathrooms
Single-storey house project without internal load-bearing walls
Click to view

Description

Single-storey house project without internal load-bearing walls<br data-rich-text-line-break="true" />Number of floors: 1<br data-rich-text-line-break="true" />Total area: 122.70 m2<br data-rich-text-line-break="true" />Living Area: 73.86 m2<br data-rich-text-line-break="true" />House height: 6.23 m<br data-rich-text-line-break="true" />Ceiling Height: 2.80 m<br data-rich-text-line-break="true" />Roof Angle: 28 °<br data-rich-text-line-break="true" />Roof area: 200.10 m2<br data-rich-text-line-break="true" />Cubic capacity: 302.00 m3<br data-rich-text-line-break="true" />Number of bedrooms: 3<br data-rich-text-line-break="true" />Number of bathrooms: 2<br data-rich-text-line-break="true" />Minimum plot size (length): 17.00 m<br data-rich-text-line-break="true" />Minimum plot size (width): 19.00 m<br data-rich-text-line-break="true" />Built-up area: 171.78 m2<br data-rich-text-line-break="true" />Materials:<br data-rich-text-line-break="true" />Walls: aerated concrete blocks<br data-rich-text-line-break="true" />Ceiling: on wooden beams<br data-rich-text-line-break="true" />Roofing: metal tile, ceramic tile, bitumen<br data-rich-text-line-break="true" />Foundation: monolithic tape

Interested in this plan?

Contact us to get full blueprints, construction estimate, or adapt this plan to your plot and needs.

Request more information

Visualization gallery