Chic house with glazed balconies and terraces

205 m² total area / 2207 ft² 2 floors 4 bedrooms 3 bathrooms
Chic house with glazed balconies and terraces
Click to view

Description

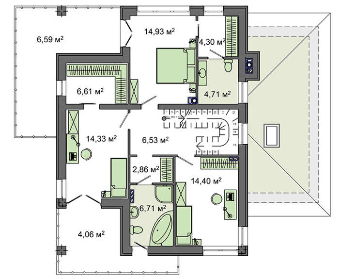
Chic house with glazed balconies and terraces Number of floors: 2 Total area: 205.31 m2 Living Area: 93.39 m2 House height: 9.24 m Ceiling Height: 2.80 m Roof Angle: 24 ° Roof area: 230.50 m2 Cubic capacity: 532.00 m3 Number of bedrooms: 4 Number of bathrooms: 3 Garage: Garage for one car Minimum plot size (length): 20.00 m Minimum plot size (width): 19.00 m Built-up area: 212.14 m2 Materials: Walls: aerated concrete blocks Overlap: monolithic overlap Roofing: metal tile, ceramic tile, bitumen Foundation: monolithic tape

Interested in this plan?

Contact us to get full blueprints, construction estimate, or adapt this plan to your plot and needs.

Request more information

Visualization gallery