The project of a European cottage with shutters

85 m² total area / 915 ft² 1 floor 2 bedrooms 1 bathroom
The project of a European cottage with shutters
Click to view

Description

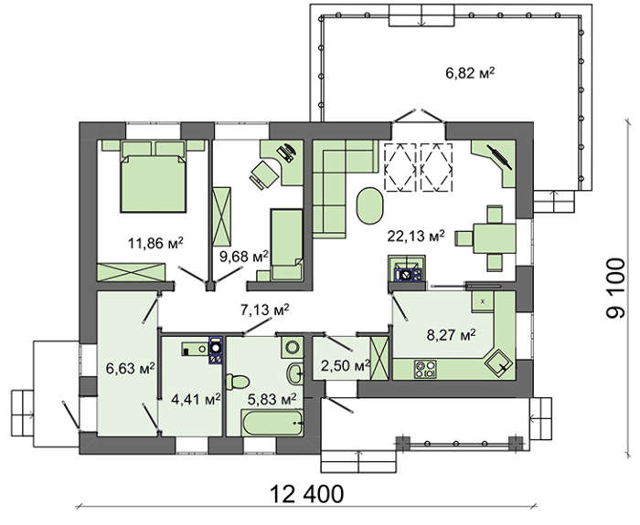
The project of a European cottage with shutters Number of floors: 1 Total area: 85.26 m2 Living Area: 43.67 m2 House height: 6.80 m Ceiling Height: 2.80 m Roof Angle: 30 ° Roof area: 164.10 m2 Number of bedrooms: 2 Number of bathrooms: 1 Minimum plot size (length): 20.50 m Minimum plot size (width): 18.50 m Built-up area: 103.6 m2 Materials: Walls: aerated concrete, ceramic blocks Ceiling: on wooden beams Roofing: metal tile, ceramic tile, bitumen Foundation: monolithic tape

Interested in this plan?

Contact us to get full blueprints, construction estimate, or adapt this plan to your plot and needs.

Request more information

Visualization gallery