The project of a chic mansion with a unique layout

324 m² total area / 3488 ft² 2 floors 3 bedrooms 3 bathrooms
The project of a chic mansion with a unique layout
Click to view

Description

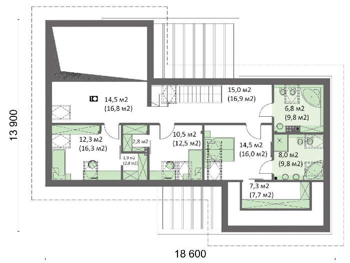
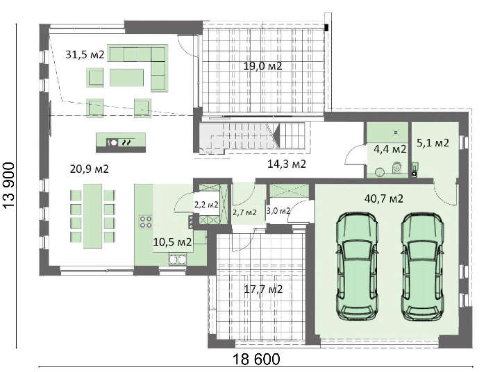
The project of a chic mansion with a unique layout<br data-rich-text-line-break="true" />Number of floors: 2<br data-rich-text-line-break="true" />Total area: 324.00 m2<br data-rich-text-line-break="true" />Living Area: 205.00 m2<br data-rich-text-line-break="true" />House height: 7.00 m<br data-rich-text-line-break="true" />Ceiling Height: 2.80 m<br data-rich-text-line-break="true" />Roof Angle: 35 °<br data-rich-text-line-break="true" />Roof area: 293.00 m2<br data-rich-text-line-break="true" />Cubic capacity: 945.00 m3<br data-rich-text-line-break="true" />Number of bedrooms: 3<br data-rich-text-line-break="true" />Number of bathrooms: 3<br data-rich-text-line-break="true" />Garage: Two-car garage<br data-rich-text-line-break="true" />Minimum plot size (length): 23.00 m<br data-rich-text-line-break="true" />Minimum plot size (width): 26.00 m<br data-rich-text-line-break="true" />Built-up area: 180 m2<br data-rich-text-line-break="true" />Materials:<br data-rich-text-line-break="true" />Walls: aerated concrete, ceramic blocks<br data-rich-text-line-break="true" />Overlap: monolithic overlap<br data-rich-text-line-break="true" />Roofing: ceramic tile, metal tile, cement-sand tile<br data-rich-text-line-break="true" />Foundation: monolithic tape

Interested in this plan?

Contact us to get full blueprints, construction estimate, or adapt this plan to your plot and needs.

Request more information

Visualization gallery