Beautiful two-story house with semicircular verandas and balconies

170 m² total area / 1830 ft² 2 floors 4 bedrooms 2 bathrooms
Beautiful two-story house with semicircular verandas and balconies
Click to view

Description

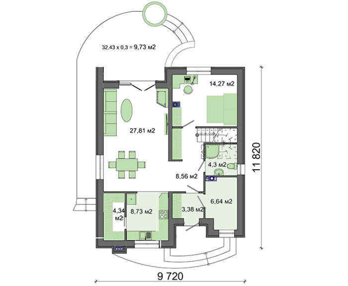
Beautiful two-story house with semicircular verandas and balconies Number of floors: 2 Total area: 169.77 m2 Living Area: 101.57 m2 House height: 8.96 m Ceiling Height: 2.80 m Roof Angle: 42 ° Roof area: 203.50 m2 Cubature: 428.40 m3 Number of bedrooms: 4 Number of bathrooms: 2 Minimum plot size (length): 20.00 m Minimum plot size (width): 17.50 m SIZES OF ROOMS Materials: Walls: aerated concrete, ceramic blocks Overlap: floor slabs Roofing: ceramic tile, metal tile, cement-sand tile Foundation: monolithic tape

Interested in this plan?

Contact us to get full blueprints, construction estimate, or adapt this plan to your plot and needs.

Request more information

Visualization gallery