Unusual brick-built residential building

195 m² total area / 2099 ft² 1 floor 3 bedrooms 2 bathrooms
Unusual brick-built residential building
Click to view

Description

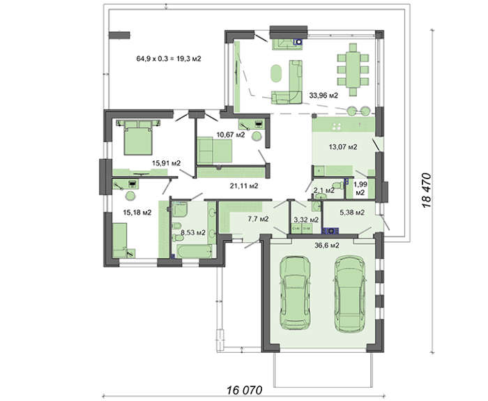
Unusual brick-built residential building Number of floors: 1 Total area: 194.82 m2 Living Area: 75.72 m2 House height: 7.72 m Ceiling Height: 2.80 m Roof Angle: 35 ° Roof area: 305.00 m2 Cubic capacity: 1012.00 m3 Number of bedrooms: 3 Number of bathrooms: 2 Garage: Two-car garage Minimum plot size (length): 23.80 m Minimum plot size (width): 26.40 m Built-up area: 214.22 m2 Materials: Walls: aerated concrete, ceramic blocks Ceiling: on wooden beams Roofing: ceramic tile, metal tile, cement-sand tile Foundation: monolithic tape

Interested in this plan?

Contact us to get full blueprints, construction estimate, or adapt this plan to your plot and needs.

Request more information

Visualization gallery