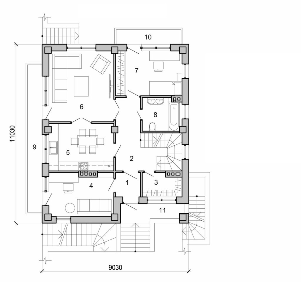
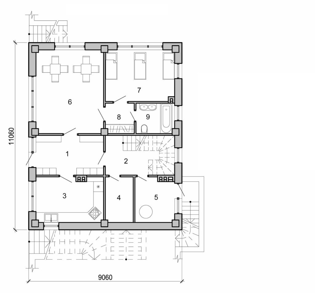
Three Storey House

297 m² total area / 3197 ft² 3 floors bedrooms
Three Storey House
Click to view

Interested in this plan?

Contact us to get full blueprints, construction estimate, or adapt this plan to your plot and needs.

Request more information

Visualization gallery