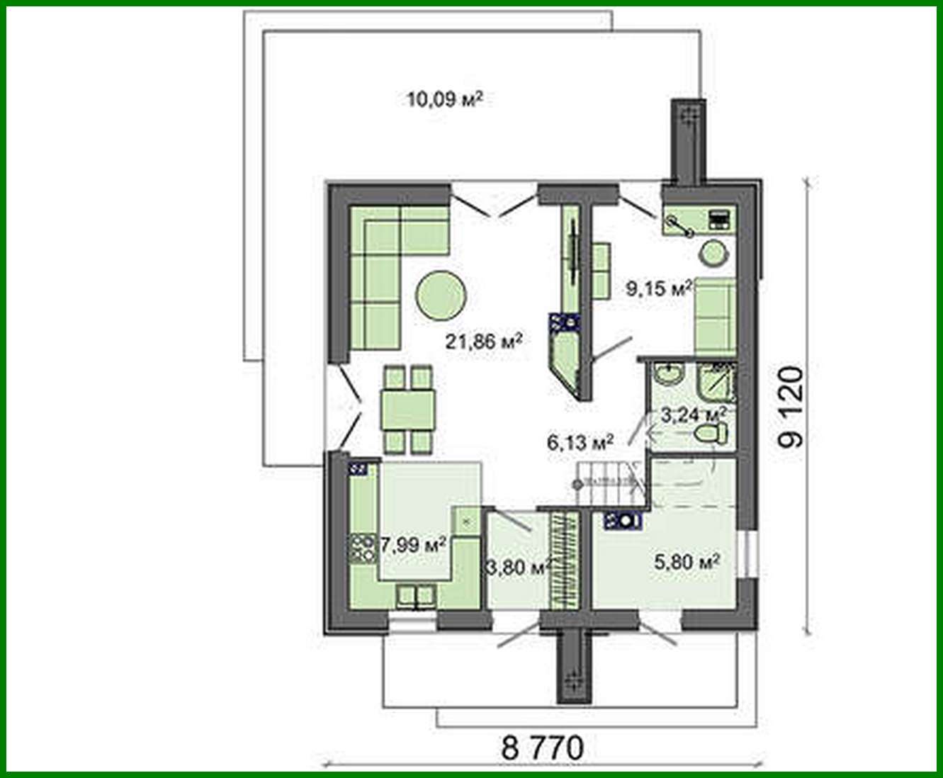
Compact two-story house 8 x 11

131 m² total area / 1410 ft² 2 floors 3 bedrooms 2 bathrooms
Compact two-story house 8 x 11
Click to view

Description

Compact two-story house 8 x 11 Number of floors: 2 Total area: 131.19 m2 Living Area: 69.06 m2 House height: 8.90 m Ceiling Height: 2.80 m Roof Angle: 30 ° Roof area: 109.00 m2 Cubic capacity: 310.00 m3 Number of bedrooms: 3 Number of bathrooms: 2 Minimum plot size (length): 16.00 m Minimum plot size (width): 18.00 m Built-up area: 135.08 m2 SIZES OF ROOMS Materials: Walls: aerated concrete blocks Overlap: monolithic overlap Roofing: metal tile, ceramic tile Foundation: monolithic tape band

Interested in this plan?

Contact us to get full blueprints, construction estimate, or adapt this plan to your plot and needs.

Request more information

Visualization gallery