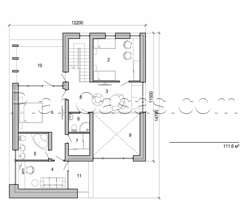
Modern home project

219 m² total area / 2357 ft² 2 floors bedrooms
Modern home project
Click to view

Interested in this plan?

Contact us to get full blueprints, construction estimate, or adapt this plan to your plot and needs.

Request more information

Visualization gallery