A project of a beautiful country estate for a rural area

162 m² total area / 1744 ft² 2 floors 4 bedrooms 2 bathrooms
A project of a beautiful country estate for a rural area
Click to view

Description

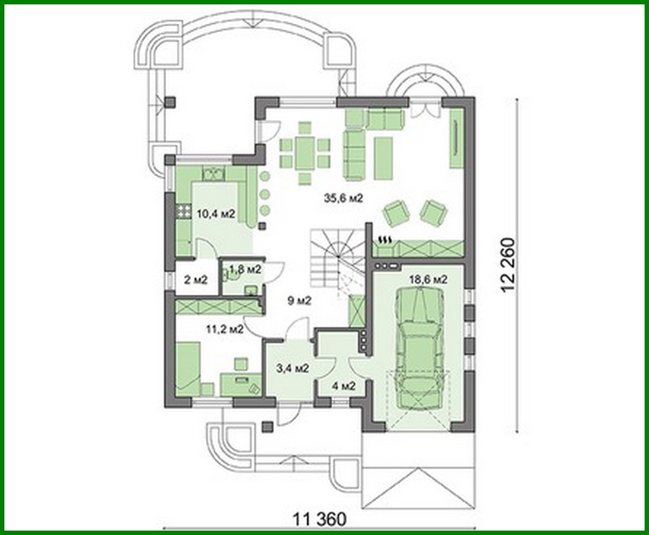
A project of a beautiful country estate for a rural area Number of floors: 2 Total area: 161.50 m2 Living Area: 112.40 m2 House height: 8.60 m Ceiling Height: 2.80 m Roof Angle: 25 ° Roof area: 163.20 m2 Cubic capacity: 496.10 m3 Number of bedrooms: 4 Number of bathrooms: 2 Garage: Garage for one car Minimum plot size (length): 18.50 m Minimum plot size (width): 19.50 m Built-up area: 135.9 m2 Materials: Walls: aerated concrete, ceramic blocks Overlap: monolithic overlap Roofing: ceramic tile, metal tile, cement-sand tile Foundation: monolithic tape

Interested in this plan?

Contact us to get full blueprints, construction estimate, or adapt this plan to your plot and needs.

Request more information

Visualization gallery