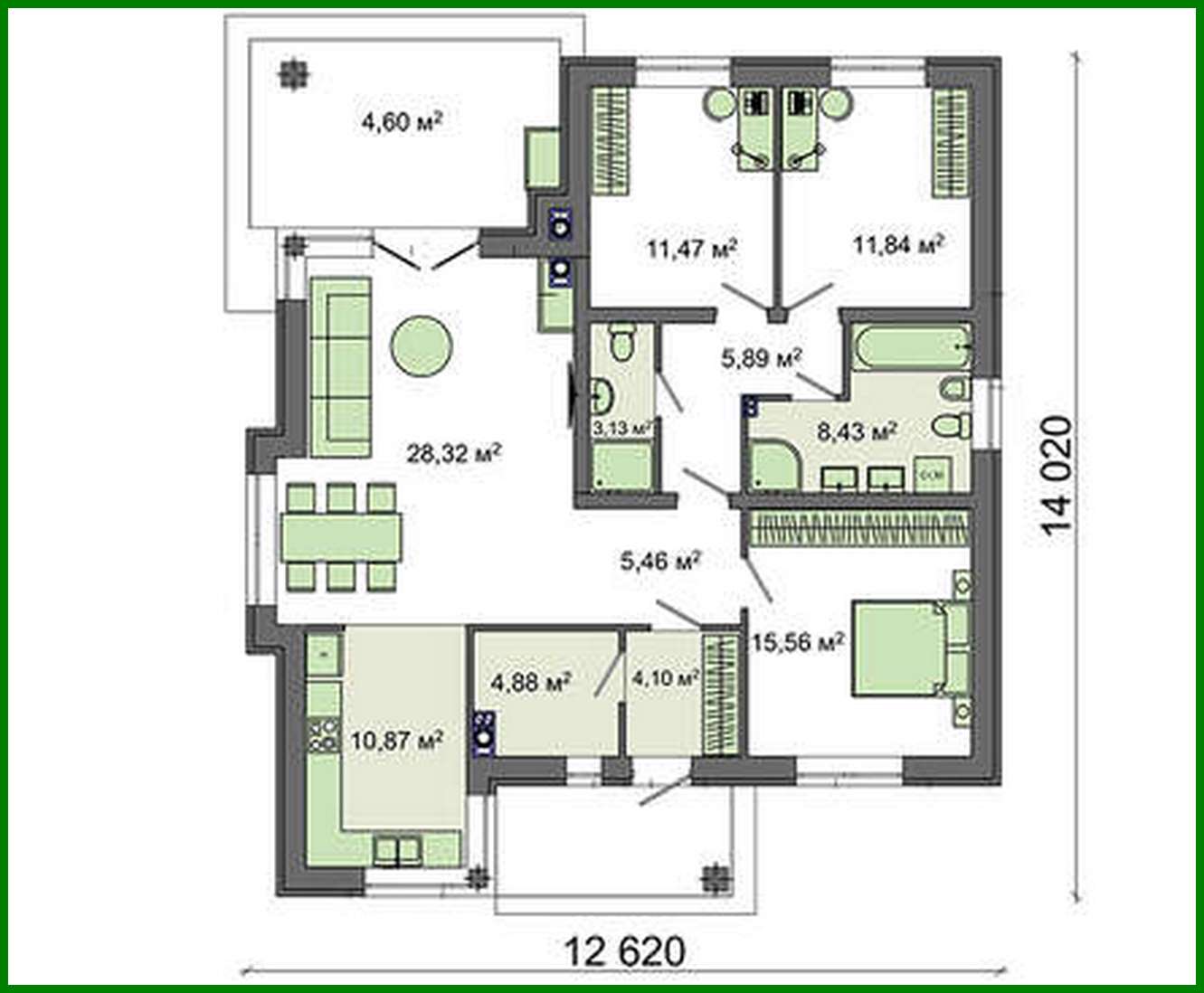
Elegant one-story house with three bedrooms

115 m² total area / 1238 ft² 1 floor 3 bedrooms 2 bathrooms
Elegant one-story house with three bedrooms
Click to view

Description

Elegant one-story house with three bedrooms<br data-rich-text-line-break="true" />Number of floors: 1<br data-rich-text-line-break="true" />Total Area: 114.55 m2<br data-rich-text-line-break="true" />Living Area: 67.19 m2<br data-rich-text-line-break="true" />House height: 6.74 m<br data-rich-text-line-break="true" />Ceiling Height: 2.80 m<br data-rich-text-line-break="true" />Roof Angle: 25 °<br data-rich-text-line-break="true" />Roof area: 236.00 m2<br data-rich-text-line-break="true" />Cubic capacity: 328.90 m3<br data-rich-text-line-break="true" />Number of bedrooms: 3<br data-rich-text-line-break="true" />Number of bathrooms: 2<br data-rich-text-line-break="true" />Minimum plot size (length): 21.00 m<br data-rich-text-line-break="true" />Minimum plot size (width): 22.00 m<br data-rich-text-line-break="true" />Built-up area: 174.5 m2<br data-rich-text-line-break="true" />Materials:<br data-rich-text-line-break="true" />Walls: aerated concrete blocks<br data-rich-text-line-break="true" />Ceiling: on wooden beams<br data-rich-text-line-break="true" />Roofing: metal tile, ceramic tile, bitumen<br data-rich-text-line-break="true" />Foundation: monolithic tape

Interested in this plan?

Contact us to get full blueprints, construction estimate, or adapt this plan to your plot and needs.

Request more information

Visualization gallery