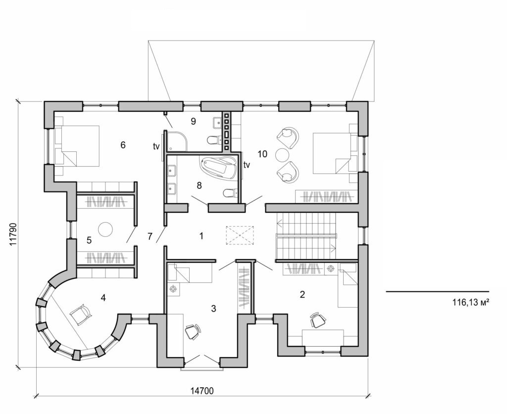
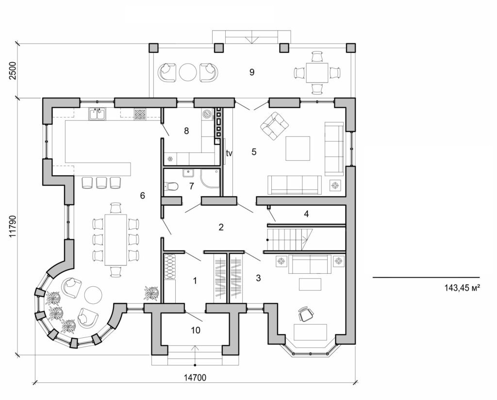
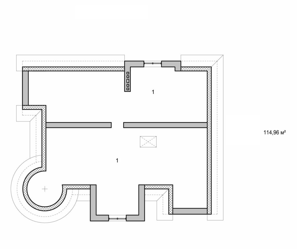
Castle type house

373 m² total area / 4015 ft² 2 floors bedrooms
Castle type house
Click to view

Interested in this plan?

Contact us to get full blueprints, construction estimate, or adapt this plan to your plot and needs.

Request more information

Visualization gallery