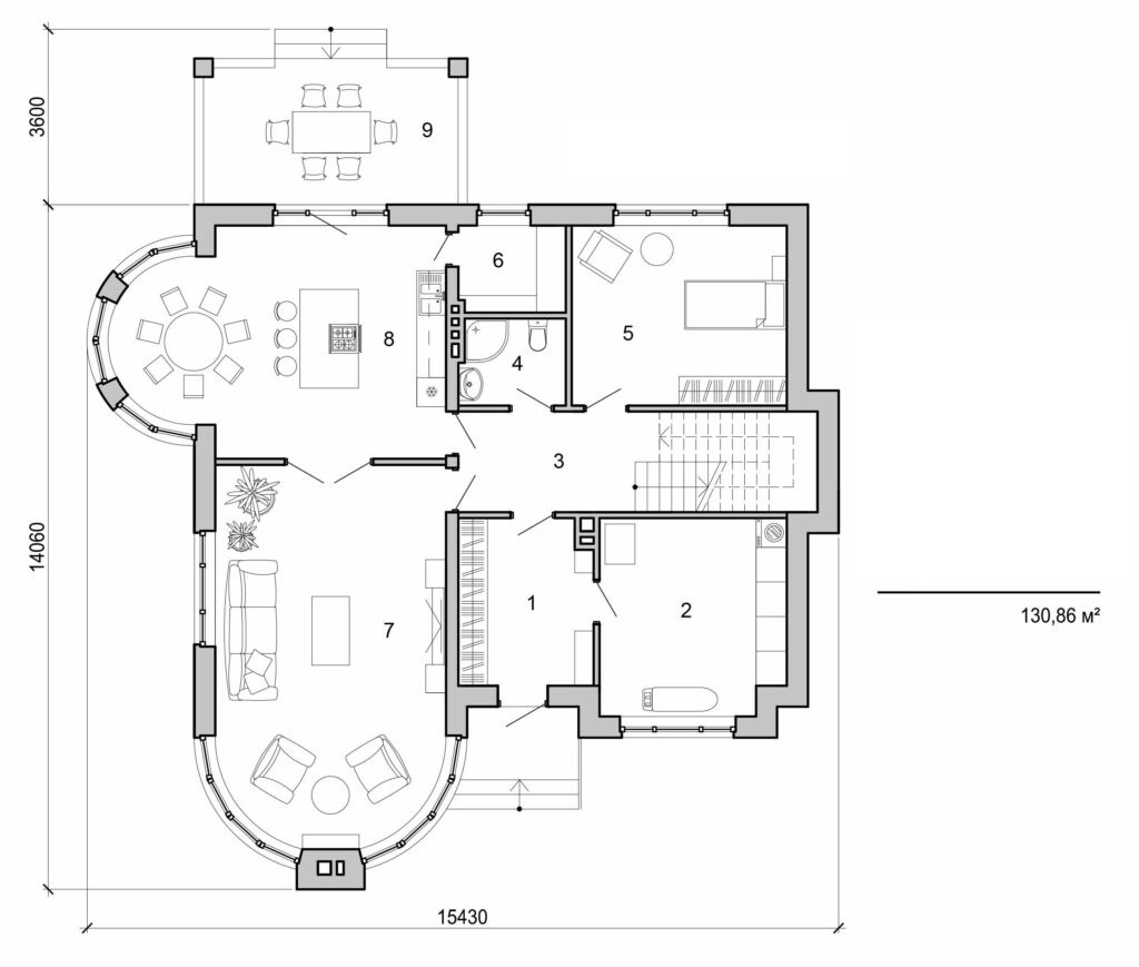
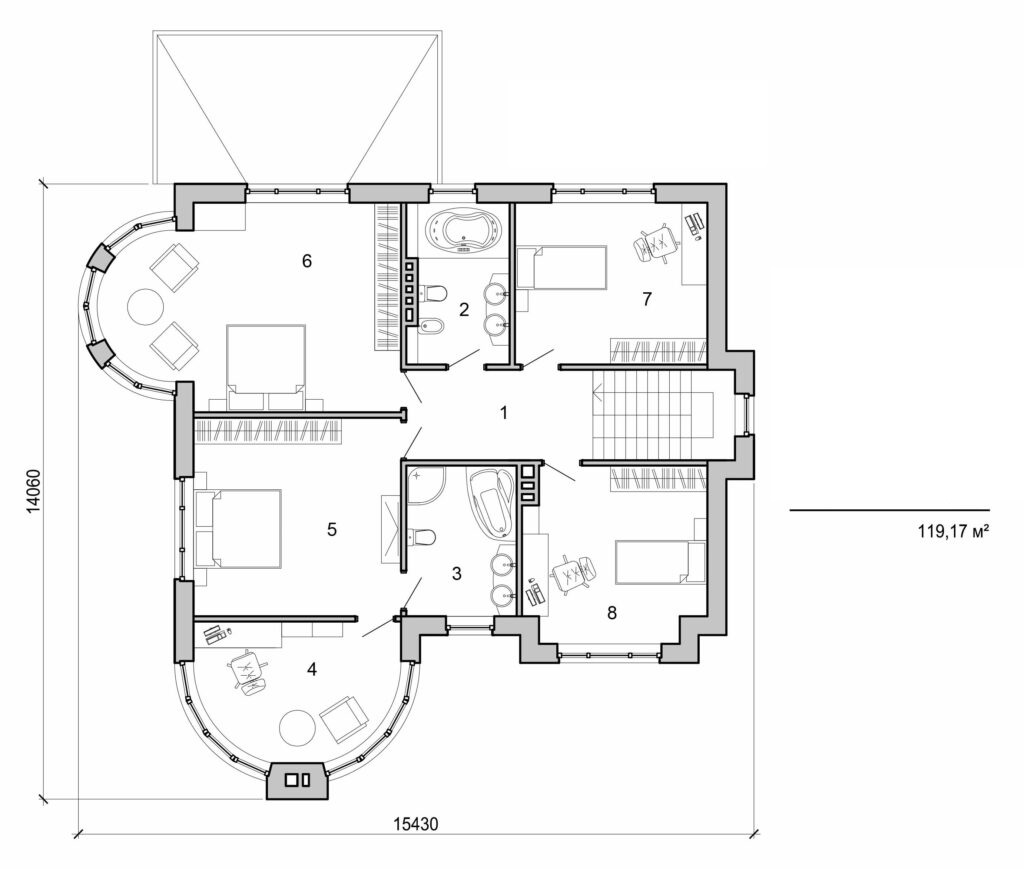
Two storey house

277 m² total area / 2982 ft² 2 floors bedrooms
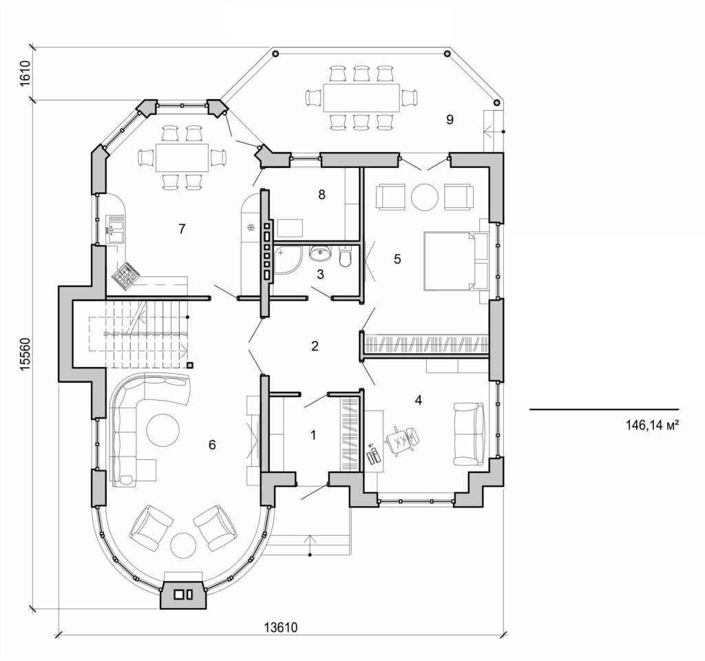
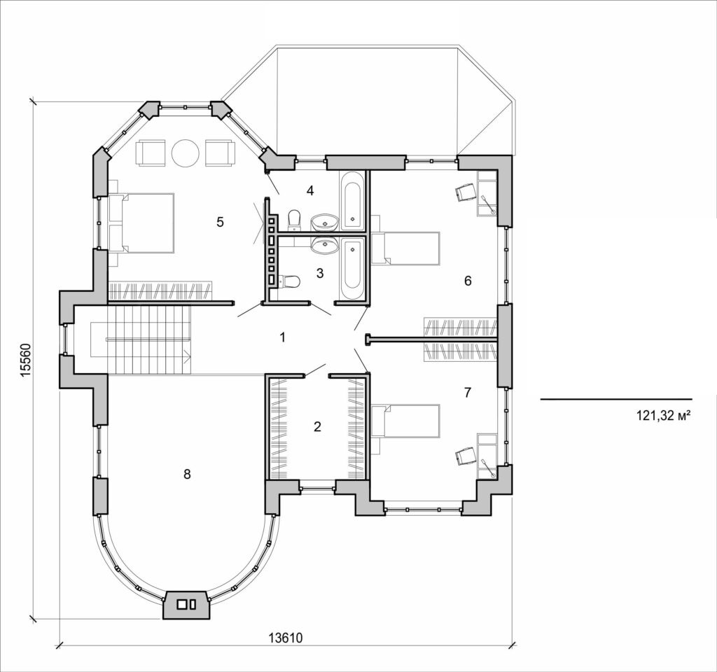
Two storey house
Click to view

Interested in this plan?

Contact us to get full blueprints, construction estimate, or adapt this plan to your plot and needs.

Request more information

Visualization gallery