Modern two-story mansion with a terrace on the second floor

294 m² total area / 3165 ft² 2 floors 5 bedrooms 5 bathrooms
Modern two-story mansion with a terrace on the second floor
Click to view

Description

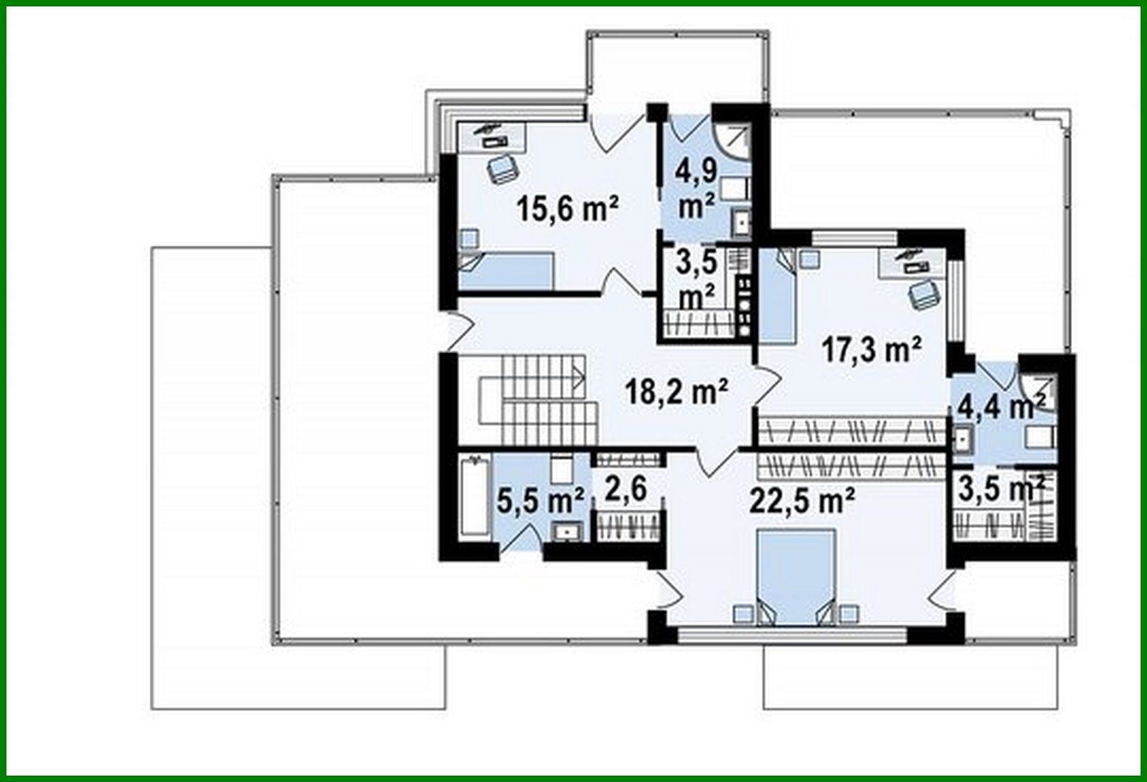
Modern two-story mansion with a terrace on the second floor Number of floors: 2 Total area: 294.45 m2 Living Area: 165.78 m2 House height: 7.58 m Ceiling Height: 2.80 m Roof Angle: 6 ° / 3 ° Roof area: 241.00 m2 Cubature: 346.00 m3 Number of bedrooms: 5 Number of bathrooms: 5 Garage: Two-car garage Minimum plot size (length): 27.30 m Minimum plot size (width): 21.50 m Materials: Walls: aerated concrete, ceramic blocks Overlap: monolithic overlap Roofing: PVC membrane Foundation: monolithic tape band

Interested in this plan?

Contact us to get full blueprints, construction estimate, or adapt this plan to your plot and needs.

Request more information

Visualization gallery